Opis
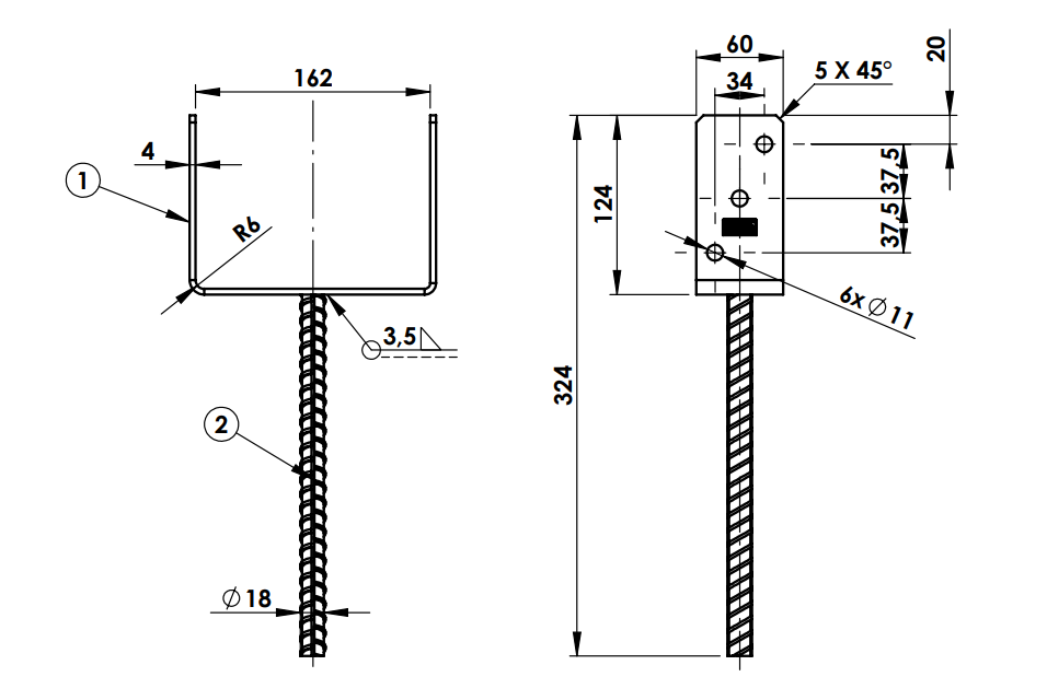
Nosač (stopa) greda sa sidrom, tip U služi za spajanje drvenih greda direktno u beton a moguće ga je koristiti i za okomito i vodoravno pričvršćivanje grede na zid. Također se koristi kod montaže nosivih krovnih konstrukcija, nadstrešnica, vrtnih i montažnih kućica i sl. Izrađen je od pocinčanog čelika što ga čini otpornim na koroziju, a samim time mu omogućuje i dugi vijek trajanja.
Debljina 4 mm
Ø sidra: 18 mm
duzina sidra 200mm
Ø rupa: 11 mm





Recenzije
Još nema recenzija.